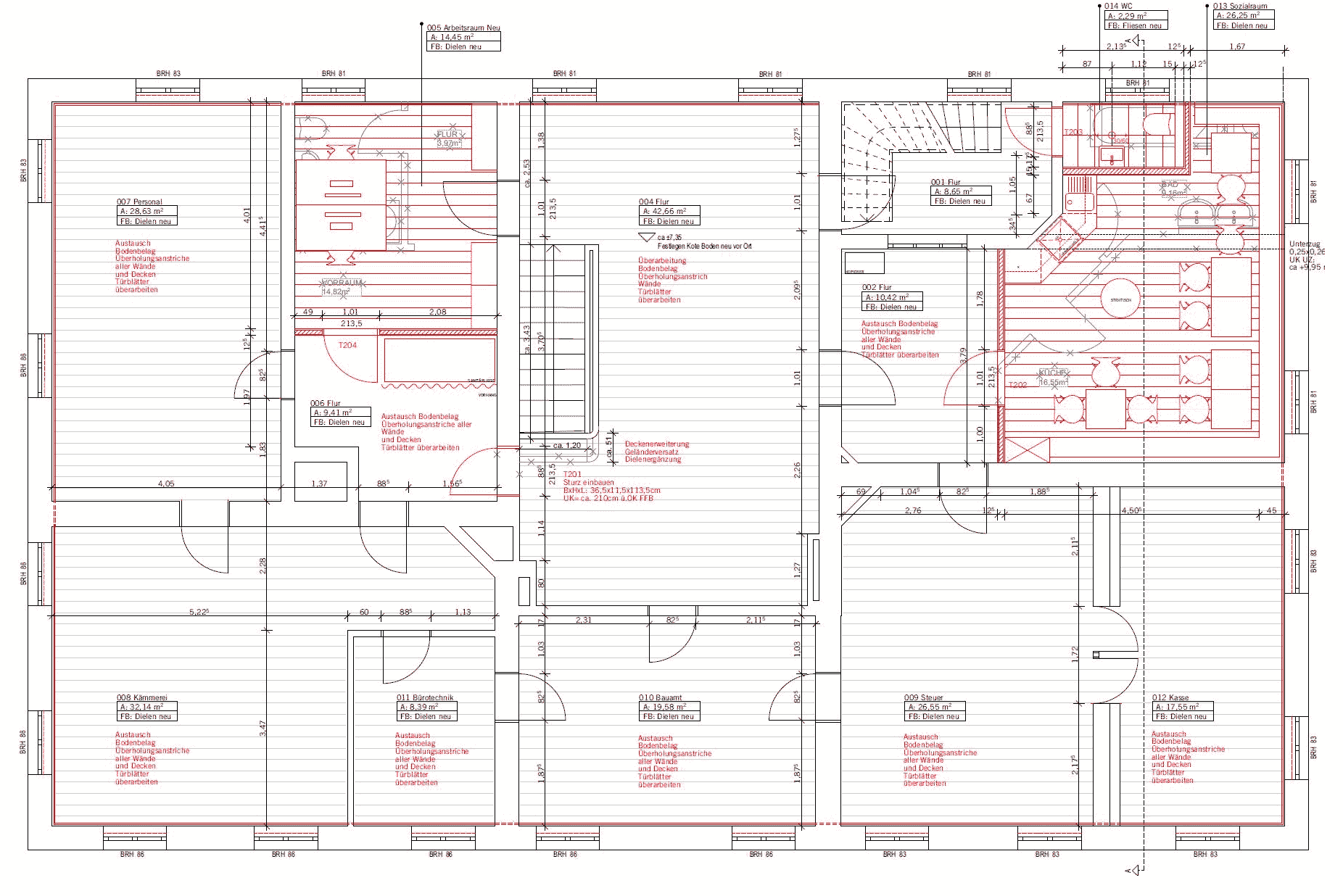
Rathaus-Skizzen bzw. Pläne vom Architekturbüro Christoph Maas:

Grundriss OG2
Grundriss OG1
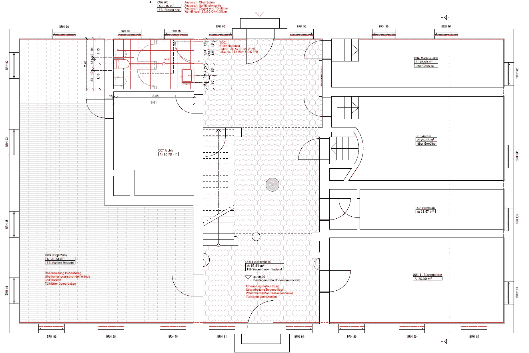
Grundriss EG
Informativ – Meinungsfreudig – Unterhaltsam
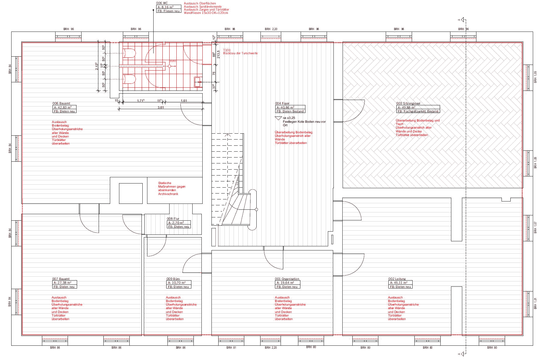
Rathaus-Skizzen bzw. Pläne vom Architekturbüro Christoph Maas:

Grundriss OG2
Grundriss OG1
Grundriss EG